Deze woning is verkocht

Lokveenweg 37 Haren Gn

Verkocht

Omschrijving

Deze woning is direct verkocht. Het betreft een statistische aanmelding.

Royale, moderne villa op uitstekende locatie in de oude groene kern van Haren!

Deze riante, sfeervol uitgebouwde woning met 5 slaapkamers heeft een gezellige speelse indeling,
veel ruimte en gebruiksmogelijkheden. Het geheel is thans in gebruik als groot gezinshuis, maar
biedt, door de eigen ingang, ook uitstekende mogelijkheden voor praktijk of bedrijf aan huis of om op
een prettige manier thuis te kunnen werken.

De woning is gemoderniseerd en levensloopbestendig gemaakt door in de aangebouwde zijvleugel
een slaapkamer en badkamer te creëren. De besloten tuin is gesitueerd op het zuiden en heeft een
ruim terras. De locatie is ideaal tussen het centrum en het treinstation en is tevens op loopafstand
van het Boeremapark.

Indeling:

Begane grond: overdekte entree met ruimte voor fietsen, ruime hal met toilet en meterkast, speels
ingedeelde woonkamer met aan de voorzijde een zitgedeelte met open haard, in het hart van de
woonruimte een luxe open inbouwkeuken met kook-/spoeleiland en eetgedeelte, aan de achterzijde
een tuingerichte zitkamer met open haard en schuifpui naar het zonnige terras, via een tussendeur is
de zijvleugel bereikbaar met een eigen entree, berging, bijkeuken, werk-/slaapkamer met schuifpui
naar de tuin, inloopkast en badkamer met douche, wastafel en toilet.

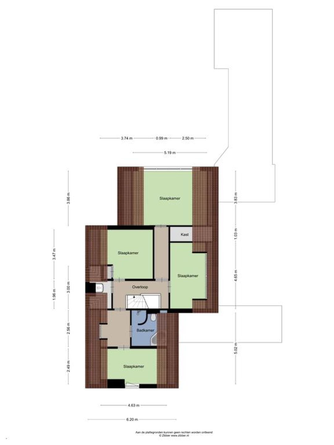
Verdieping: trapopgang met mooie lichtinval, overloop, ouderslaapkamer aan de achterzijde met
ruime kastenwand, slaapkamer aan de voorzijde met bergruimte en frans balkon, slaapkamer aan de
zijkant met dakkapel, slaapkamer andere zijde met vaste kast en dakraam, sfeervolle complete
badkamer met hoekbad, inloopdouche, wastafel en toilet, berging met c.v.-opstelling.

Info:
-bouwjaar 1950, verbouwd/aangebouwd in 1985 en 2000. De woning is nadien onder architectuur
gemoderniseerd.
-woonoppervlakte 217m².
-inhoud 837m³.
-energielabel C.
-de woning is voorzien van dubbele beglazing, vloerisolatie en muurisolatie.
-luxe woonkeuken met kook-/spoeleiland, 4-pits gaskookplaat, afzuigkap, quooker, vaatwasser,
Miele apparatuur (koelkast, koffiemachine, stoomoven en oven).
-beide open haarden in de woonruimte zijn voorbereid op een gasaansluiting.
-wanden voorzien van stucwerk.
-c.v.-combiketels 2013 en 2010 (voor de aanbouw).
-drie slaapkamers zijn voorzien van een vaste airco.
-in de achtertuin staat een fietsenschuur en een overkapping voor hout.

Kortom een fantastische instapklare villa met royale tuin op het zuiden op een toplocatie nabij het
dorpscentrum met alle winkels, scholen en (sport-)voorzieningen in de omgeving. Wij nodigen u van
harte uit om het “thuis”gevoel te ervaren.

Aanvaarding: in overleg, circa juli 2022.
Lees de volledige omschrijving
Woonoppervlakte
217 m²
Inhoud
837 m³
Perceeloppervlakte
775 m²
Bouwjaar
1950
Kamers
6
Slaapkamers
5

Overdracht

Aanvaarding
in overleg

Bouw

Soort woning
villa
Type woning
vrijstaande woning
Soort bouw
bestaande bouw
Bouwjaar
1950
In aanbouw
nee

Details

Voorzieningen
airconditioning, dakraam, schuifpui
Ligging
beschutte ligging, in woonwijk
Permanente bewoning
ja
Daktype
zadeldak
Dakmateriaal
pannen

Oppervlakten en inhoud

Woonoppervlakte
217 m²
Perceel
775 m²
Inhoud
837 m³

Indeling

Aantal kamers
6
Aantal slaapkamers
5
Aantal etages
2
Aantal badkamers
2
Badkamervoorzieningen
inloopdouche, ligbad, toilet, wastafel
Keuken type
inbouwapparatuur, open keuken

Isolatie en verwarming

Isolatievormen
dubbel glas, muurisolatie, vloerisolatie
Soort verwarming
cv ketel
Warmwater installatie
cv ketel
Ketel bouwjaar
2013
Ketel type
Atag
Ketel gas/olie
gas
Ketel eigendom
eigendom

Energielabel

Energielabel
C
Einddatum energielabel
2030-12-29

Kadastrale gegevens

Kadastrale aanduiding
Haren gn K 6488
Oppervlakte
775 m²
Eigendomssituatie
volle eigendom

Buitenruimte

Tuintype(n)
achtertuin, voortuin, zijtuin
Hoofdtuin type
achtertuin
Hoofdtuin oppervlakte
247 m²
Hoofdtuin achterom
nee
Ligging hoofdtuin
zuid
Totale oppervlakte
610 m²

Garage

Garagesoorten
geen garage

Parkeergelegenheid

Faciliteit
op eigen terrein, openbaar parkeren

Schuur/berging

Aantal
1
Soort
vrijstaand hout
Bekijk alle kenmerken

Kaart Lokveenweg 37 Haren Gn

naar Lokveenweg 37 Haren Gn
Op 5 minuten loopafstand Op 5 minuten fietsafstand